Financial Qualification
- Maximum household size: 6
- View program requirements: Program Qualifications – Habitat Portland Region
- Income guidelines:
2 homes available at 60-80% AMI
| Household size | Minimum income | Maximum income |
|---|---|---|
| 1 | $69,167 | $69,550 |
| 2 | $69,167 | $79,450 |
| 3 | $69,167 | $89,400 |
| 4 | $69,167 | $99,300 |
| 5 | $69,167 | $107,250 |
| 6 | $69,167 | $115,200 |
Additional information
- Homes will be resale restricted to provide for lasting affordability.
- Must be willing to partner and complete sweat equity hours.
- Must meet partner lender requirements and secure financing to meet minimum mortgage amounts based on income. Your monthly payment will be based on your income and household size.
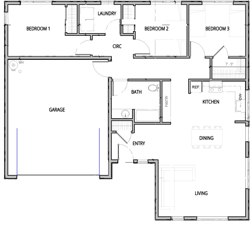
Property Features
- Energy-efficient appliances including a range, refrigerator, dishwasher, washer, dryer
- Solar ready
Property Information
- Style: Single Family Home
- Bedrooms: 3
- Bathrooms: 1 full bath
- Square Footage: 1,704 sq ft (including garage)
- Parking: 1-car attached garage
- Heating: Forced air
Schools
- Capitol Hill Elementary School (Grades: K-5)
- Jackson Middle School (Grades: 6-8)
- Ida B. Wells High School (Grades: 9-12)
All renderings/images shown are for illustration only.


