Financial Qualification
- Maximum household size: 8
- View program requirements: Program Qualifications – Habitat Portland Region
- Income guidelines in charts below:
5 homes available at 60-80% AMI
| Household size | Minimum income | Maximum income |
|---|---|---|
| 1 | n/a | n/a |
| 2 | $74,216 | $79,450 |
| 3 | $74,216 | $89,400 |
| 4 | $74,216 | $99,300 |
| 5 | $74,216 | $107,250 |
| 6 | $74,216 | $115,200 |
| 7 | $74,216 | $123,150 |
| 8 | $74,216 | $131,100 |
3 homes available at 80-100% AMI
| Household size | Minimum income | Maximum income |
|---|---|---|
| 1 | n/a | n/a |
| 2 | $98,179 | $99,300 |
| 3 | $98,179 | $111,700 |
| 4 | $98,179 | $124,100 |
| 5 | $98,179 | $134,028 |
| 6 | $98,179 | $143,956 |
| 7 | $98,179 | $153,884 |
| 8 | $98,179 | $163,812 |
Additional information
- Homes will be resale restricted to provide for lasting affordability.
- Must be willing to partner and complete sweat equity hours.
- Must meet partner lender requirements and secure financing to meet minimum mortgage amounts based on income. Your monthly payment will be based on your income and household size.
Property Features
- Energy-efficient appliances including a range, refrigerator, dishwasher, washer, dryer
- Solar ready
Property Information
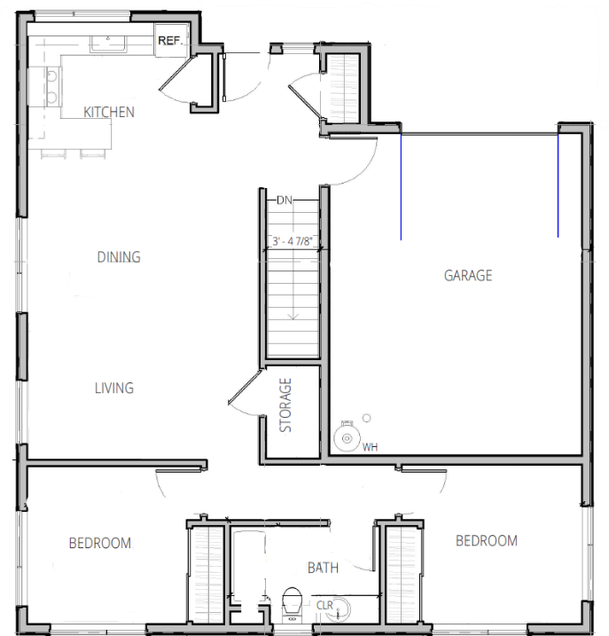
- Style: Single Family Home
- Bedrooms: 4
- Baths: 2 full baths
- Square Footage: 1,884 sq ft (including garage)
- Parking: 1 car attached garage
- Covered patio at backyard from Basement Level
- Heating: Forced air
Schools
- Capitol Hill Elementary School (Grades: K-5)
- Jackson Middle School (Grades: 6-8)
- Ida B. Wells High School (Grades: 9-12)
All renderings/images shown are for illustration only.

1st level

Basement Level

Back View – Covered Patio at Basement Level

Right view

Left view