Financial Qualification
- Maximum household size: 4
- View income guidelines & program requirements: Program Qualifications – Habitat Portland Region
Additional Information
- Homes will be resale restricted to provide for lasting affordability.
- Must be willing to complete homeownership education classes and attend engagement activities.
- Must meet partner lender requirements and secure financing to meet minimum mortgage amounts based on income. Your monthly payment will be based on your income and household size.
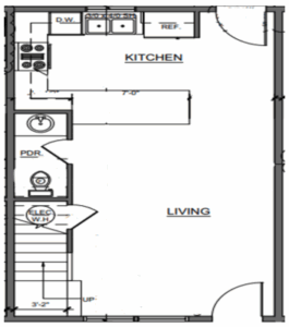
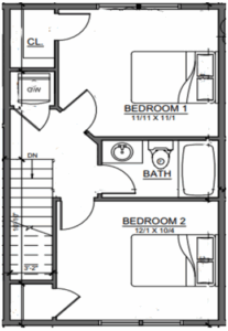
Property Features
- Energy efficient appliances including a range, refrigerator, dishwasher, washer, dryer
- Solar ready
Property Information
- Style: fourplex/townhome
- Bedrooms: Two
- Bathrooms: One full bath and one half bath
- Square Footage: 858
- Parking: 1 assigned parking space
- Heating: Forced air
Schools
- Woodmere Elementary School
- Whitman Elementary School
- Lane Middle School
- Franklin High School
Photos
Images are for reference only, from a similar property by DBS Group.



All renderings/images shown are for illustration only.











